
Informatie woning
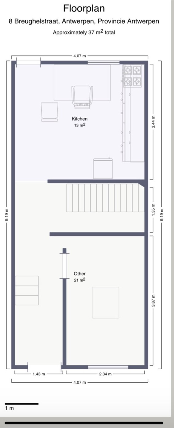
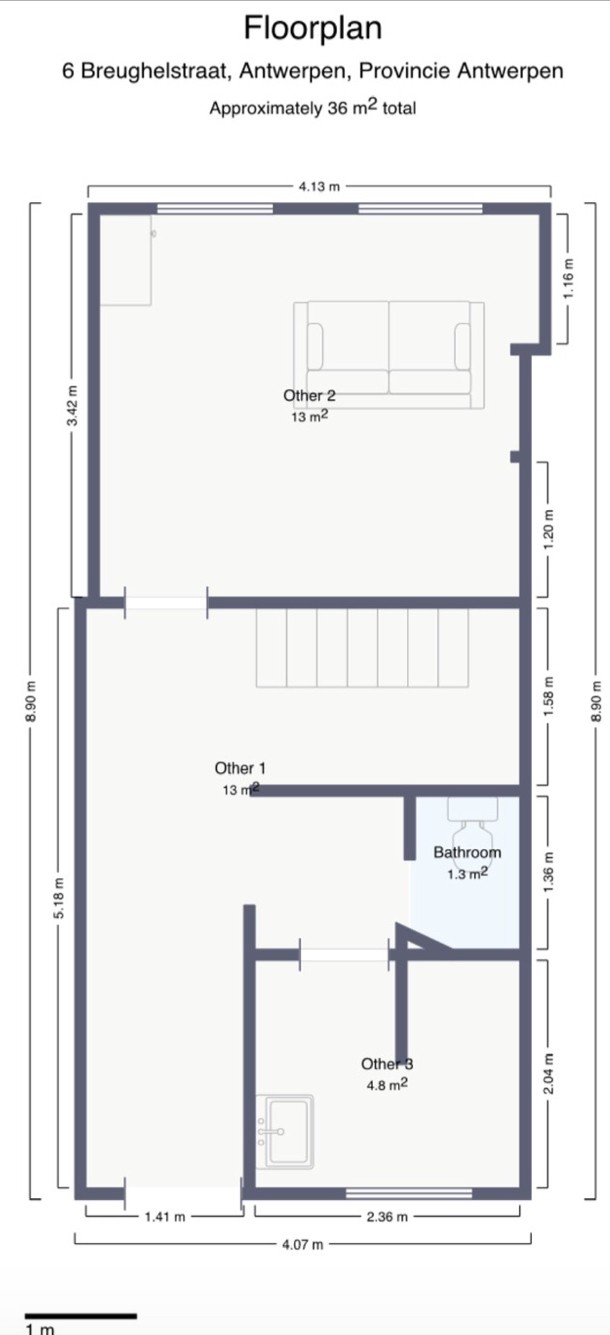
Authentiek gebouw uit 1982 heeft een karaktervolle gevel en bijzonder veel potentieel. Op de gelijkvloerse verdieping bevindt zich naast de praktische berging met de nutsmeters, de ruime geïnstalleerde keuken op tegel die tevens toegang biedt tot een zuidoostgerichte stadskoer van ongeveer 7 m². Op de eerste verdieping bevindt zich een slaapkamer van ca. 13 m² aan de achtergevel, een badkamer met douche, lavabo en spiegel en een afzonderlijk toilet. De tweede verdieping biedt twee ruime slaapkamers van respectievelijk 13m² en 15 m², mooi afgewerkt met laminaat en verdeeld over de achter- en voorgevel, en dezelfde indeling vind je terug op de derde verdieping waardoor het pand in totaal vijf volwaardige slaapkamers telt. Met een EPC-label D, een niet-conforme elektrische keuring en een asbestveilig attest biedt dit huis een solide basis voor wie wil renoveren en zijn eigen stempel drukken. De ligging is een absolute troef: rustig en toch centraal, vlak bij het Stadspark en omgeven door supermarkten, scholen en horecazaken. Dankzij de nabijheid van de belangrijkste in- en uitvalswegen en het Centraal Station op wandelafstand is mobiliteit gegarandeerd en met een Mobiscore van 10 op 10 is dit een uitzonderlijk goed gelegen woning met enorm veel mogelijkheden.
Indeling
GLV:
V1:
V2:
V3:
Extra's
Algemene informatie
Gebouw
Ligging